Property Type
Condo, Apartment
Parking
Garage: No, 1 parking
MLS #
R3061936
Size
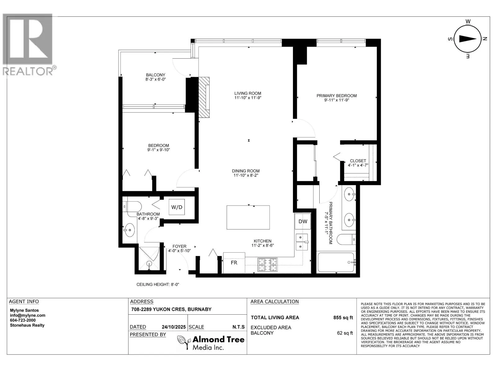
855 sqft
Basement
-
Listed on
-
Lot size
-
Tax
-
Days on Market
-
Year Built
2008
Maintenance Fee
$472.23/mo
