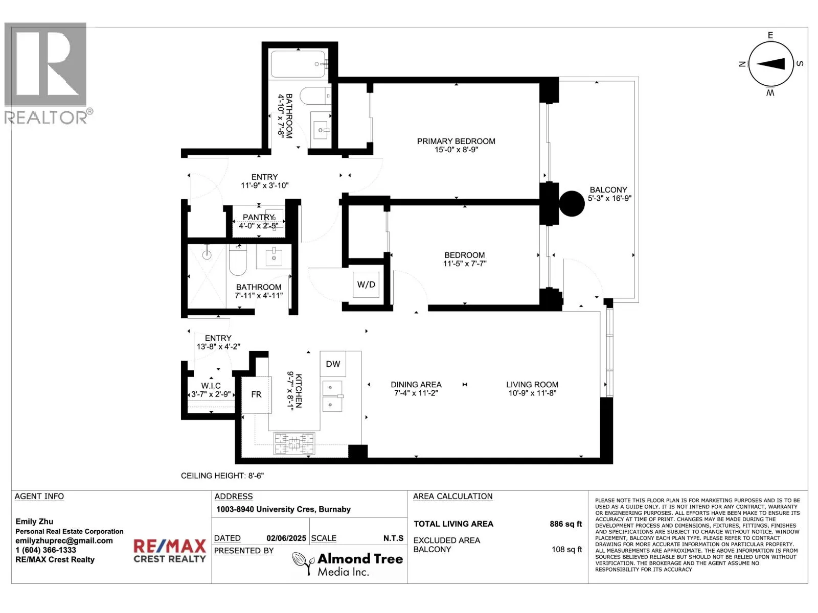
Property Type
Condo, Apartment
Parking
Garage: No, 1 parking
MLS #
R3062622
Size
886 sqft
Basement
-
Listed on
-
Lot size
-
Tax
-
Days on Market
-
Year Built
2021
Maintenance Fee
$606.91/mo
